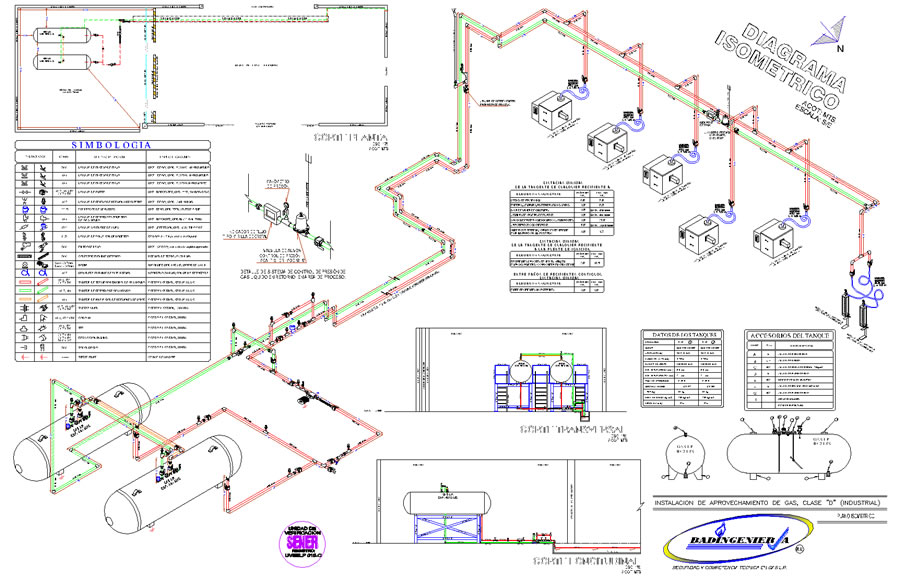
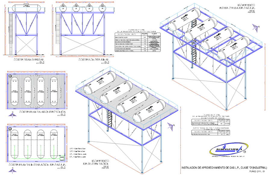
SERVICIOS: Elaboración de isométricos


Elaboración de Isométricos de cualquier tipo de Instalación de Aprovechamiento de Gas L.P.